Coal mine Arthur de Buyer
The coal mine Arthur de Buyer in activity
Location
Coal mine Arthur de Buyer is located in France
Coal mine Arthur de Buyer
Coal mine Arthur de Buyer
LocationMagny-Danigon
Coordinates47°40′37″N 6°36′51″E / 47.677008°N 6.614247°E / 47.677008; 6.614247
History
Opened1900 (1900)
Closed1954
Owner
CompanyRonchamp coal mines

The Arthur de Buyer Coal Mine, or coal mine #11, was one of the major Ronchamp coal mines, which is in the area of the city Magny-Danigon in the French region of Franche-Comté. Digging started in 1894 to ensure the future of the company (in a difficult position at this time). The project was directed by Leon Poussigue, director of the company since 1891. He was responsible for organizing the excavation, designing buildings and installing each machine. The seat is named to tribute of Arthur de Buyer (the same family of the De Buyer owner), the president since 1876. He retired during the commissioning activity of the mine.

Active from 1900 to the early 1950s, was its depth 1010 meters, making it the deepest mine in France in the early 20th century and the first to pass the symbolic depth of 1,000 meters.

After it had brought coal for almost half a century, there were, up to the 21st century, several conversion attempts. Today only ruins remain. A project to install a solar photovoltaic power plant in the municipality is under study since June 2012.

Pictures

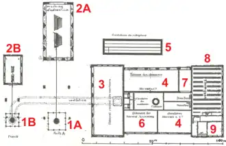
Organization of buildings :
1A. Shaft mining A (extraction);
1B. Shaft mining B (relief);
2A. Winding engine A;
2B. Winding engine B;
3. underground mine ventilation mechanical fan, Air compressor, Electric generator;
4. Boiler;
5. Cooling tower;
6. Alsatian companies room;
7. schower;
8. cloakroom;
9. offices and lampisteria.

See also

Connected Articles

This article is issued from Wikipedia. The text is licensed under Creative Commons - Attribution - Sharealike. Additional terms may apply for the media files.